Skip to content
The Dunes Warkworth
Overview
Features
Gallery
Floorplan
Location & Local Area
Blog
Book Your Stay
The Dunes Warkworth
Toggle Menu
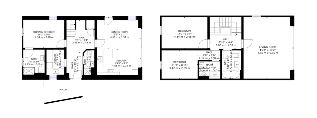
Floorplan
View the floorplan to The Dunes.
Overview
Features
Gallery
Floorplan
Location & Local Area
Blog
Book Your Stay